Квартиры с видом на Дон

Локация 9-11

Исторический район Ростова

 
1-К - 3-К квартиры

38,2 м² - 76,3 м²

 
Срок передачи ключей

2 квартал 2027

 
Стоимость

от 5 528 950 руб.

Жилой комплекс бизнес-класса Локация 9-11 расположен на берегу Дона, в историческом районе Ростова-на-Дону. В шаговой доступности находятся детские сады, школы, медицинские учреждения, магазины, кафе и спортивные центры. Локация идеально подходит для тихой и спокойной жизни, т.к. ЖК, находясь в городе, расположен особняком от шумных улиц и проспектов. При этом, до центра города можно добраться на транспорте за 5-10 минут. Рядом с комплексом планируется благоустройство набережной и это будет прекрасное место для вечерних прогулок, утренних пробежек или рыбалки.

Пролетарский район, Нахичевань, ул 9-я Линия

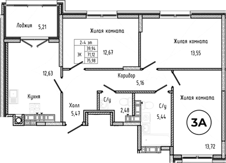
ТИПОВЫЕ ПЛАНИРОВКИ ОБЪЕКТОВ

1-комнатные квартиры

Площадь от 38.2 м2

от 5.601.850 руб.

2-комнатные квартиры

Площадь от 54.3 м2

от 7.843.580 руб.

3-комнатные квартиры

Площадь от 76.3 м2

от 11.084.500 руб.

возьмите максимум от вашей покупки

акции ограничены, успейте воспользоваться уникальными предложениями

Ипотека от 6%

Семейная, военная, IT.

Отделка White box в подарок.

При покупке 3-х комнатной квартиры.

Рассрочка от застройщика

1 Вариант:
- Первоначальный взнос 20%,
- 20% ежемесячными платежами до 01.05.2026,
- 60% одним платежом, либо переход на ипотеку.

2 Вариант:
- Первоначальный взнос 30%
- Остаток через 6 месяцев.

ипотечный калькулятор

укажите параметры и рассчитайте ежемесячный платеж

5 700 000 11 600 000
20% 100%
1
1 30
* Расчёты не являются публичной офертой. Конечные условия кредитования определяются банком после рассмотрения заявки
Пожалуйста, укажите телефон
Согласен на обработку персональных данных
Необходимо согласие

Локация 9-11 ЭТО

Можно бесконечно смотреть на то, как течёт река. Вы находитесь на первой береговой линии реки Дон в историческом районе, с которого зарождался город. Шум воды, пение птиц, прекрасный вид. Покой и умиротворение.

Жить в Локации 9-11 - это быть одновременно в городе и в пригороде. Можно легко и быстро добраться до торговых центров, магазинов, театров и ресторанов. А можно, находясь вдали от городского шума, спокойно сходить на рыбалку.

ЖК «Локация 9-11» имеет собственную закрытую территорию с широкими дворами. По всему периметру оборудовано видеонаблюдение. Каждый из пяти домов имеет собственный подземный паркинг. В уютных холлах подъездов Вас встретят консьержи. Малый формат ЖК сформирует дружное сообщество соседей, только свои люди. Локация безопасности для Вас и Ваших близких.

Позаботьтесь о своем автомобиле - на закрытом теплом паркинге он будет в полной безопасности. Из теплого паркинга вы можете попасть на свой этаж на комфортном лифте.

ОНЛАЙН КОНСУЛЬТАЦИЯ

получите больше информации о проекте
и задайте свои вопросы

НЕ НАШЛИ ПОДХОДЯЩЕЕ?

Укажите параметры недвижимости, и мы подберем варианты в течение дня бесплатно

Пожалуйста, укажите телефон
Согласен на обработку персональных данных
Необходимо согласие
Написать в мессенджер